TECHNOLOGY CENTER
技術中心
更深入的了解,促使更合理的選擇
TECHNOLOGY CENTER
技術中心
更深入的了解,促使更合理的選擇
華建工業快速門系列
華建工業快速門分為:快速軟簾門、快速堆積門、快速門冷庫門、快速硬質門四大類;每類產品都有開關門速度快,開門控制方式多樣化的共同特點,但他們都有不同的特性,所以被用在不同的環境和場所。
一、華建工業快速軟簾門說明
華建快速軟簾門適用于風壓或負壓﹤30kg/m2的門洞條件安裝,采用分段式高密度聚酯纖維工業基布(厚度0.8-1.2mm)門簾,配全透明PVC軟片(厚度為1.5mm)透明視窗;門架結構可為:鍍鋅板擠壓成型后噴涂、鋁合金、不銹鋼;驅動系統采用高頻專用電機,功率:0.75-2.2kw;電壓220V/380V;控制系統使用IP55盒子與各種常用型保護裝置兼容,可挖掘更多控制方式,整體采用PCL數字編程、實現人員車輛及物品的安全通過;停電后可通過手動遙桿輕松開啟或關閉門體;運行速度上行0.6~2.0米/秒,下行0.6~2.0米/秒,開、關門速度可通過變頻器根據實際需要調節所需上、下行速度。
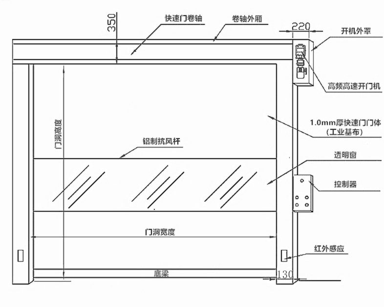
(一)快速軟簾門結構示意圖


快速軟簾門土建安裝結構尺寸說明
快速軟簾門的安裝土建結構要求相對簡單,根據上圖中產品各處尺寸及實際安裝工藝方法確定快速軟簾門安裝對土建結構尺寸的要求為:門洞兩側寬度空間≥130㎜(但應有安裝控制器的位置)、安裝電機處寬度空間≥450㎜、安裝卷軸處高度空間≥500㎜。
快速軟簾門部件清單(單樘)及簡述

二、華建工業快速堆積門說明
華建快速堆積門是在快速軟簾門基礎上的創新產品,把快速軟簾門的卷式開門方式改為了通過背帶的堆積開門方式,把快速卷門的鋁合金抗風桿改為了鋼質圓形抗風桿,較快速軟簾門適用的門洞面積更寬、更高、抗風壓或負壓能力更強。采用聯體式高密度聚酯纖維工業基布(厚度0.8-1.2mm)門簾,配全透明PVC軟片(厚度為1.5mm)透明視窗;門架結構可為:鍍鋅板擠壓成型后噴涂、不銹鋼;驅動系統采用高頻專用電機,功率:0.75-2.2kw;電壓220V/380V;控制系統采用IP55盒子與各種常用型保護裝置兼容,可挖掘更多控制方式,整體采用PCL數字編程、實現人員車輛及物品的安全通過;停電后可通過手動遙桿輕松開啟或關閉門體;運行速度上行0.6~1.5米/秒,下行0.6~1.5米/秒,開、關門速度可通過變頻器根據實際需要調節所需上、下行速度。
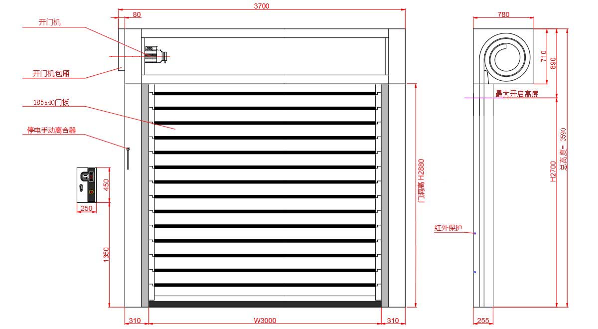
快速堆積門結構示意圖

快速堆積門土建安裝結構尺寸說明
快速堆積門與快速軟簾門的安裝土建結構要求有所不同,因為快速堆積門的軌道大小、卷軸大小、卷軸包廂大小是根據實際的門體大小、風壓大小來靈活設計的,卷軸包廂安裝的高矮位置是根據現場要求的門體開啟后的凈高尺寸來確定的,所以快速堆積門安裝對土建結構尺寸要求是變化的,不同的門體尺寸土建要求不同,無法準確確定。需求時務必向華建確認現場是否滿足產品安裝要求。
快速堆積門部件清單(單樘)及簡述

三、華建工業快速冷庫門說明
華建快速冷庫門是在快速軟簾門基礎上的創新產品,在保持快速開啟和快速門關閉的前提下通過技改、創新,使門具有保溫、隔熱、防凍防結霜、防撞的特性。華建快速門冷庫門經得起冷熱交替,適用于保鮮庫、冷藏庫、冷庫及緩沖間,適用溫度為-30~-0℃。具有自動恢復功能,當門體受外力撞擊從軌道里脫落后,在下一個開啟過程中自我修復回原到軌道中,并且使用如初。門體采用雙層耐低溫冷庫專用簾布中間填充30㎜保溫材料,兩側立柱采用的加熱布袋側密封及頂密封和加熱機構可有效防止軌道兩側結霜,特定環境下還可加裝工業級風扇除霜防霜;驅動系統采用高頻專用電機,功率:0.75-2.2kw;電壓220V/380V;控制系統采用IP55盒子與各種常用型保護裝置兼容,運行速度上行0.6~1.5米/秒,下行0.6~1.5米/秒,開、關門速度可通過變頻器根據實際需要調節所需上、下行速度。
快速冷庫門結構示意圖

快速冷庫門土建安裝結構尺寸說明
快速冷庫門的安裝土建結構要求相對簡單,根據產品各處尺寸及實際安裝工藝方法確定快速冷庫門安裝對土建結構尺寸的要求為:門洞兩側寬度空間≥210㎜(但應有安裝控制器的位置)、安裝電機處寬度空間≥450㎜、安裝卷軸處高度空間≥450㎜。
快速冷庫門部件清單(單樘)及簡述

四、華建工業快速硬質門說明
華建工業快速硬質門是在快速軟簾門、快速堆積門、快速冷庫門基礎上的創新產品,在保持快速開啟和快速門關閉的前提下通過技改、創新,使門具有保溫、隔熱、高強度、高抗風性的特性;華建工業快速硬質門采用帶雙螺旋渦輪結構的方式來引導門體的開和關,門體兩端均設有特制的導向輪和滾動滑輪在軌道和螺旋渦輪結構的端板中滾動運行;在門體開關過程中門體的導向輪和滾動滑輪與軌道和螺旋渦輪結構的組合形式使門體卷成卷軸后門體與門體之間有一定間隙,表面不相互摩擦;門體卷成卷軸后卷層之間無接觸且有運行軌跡,門體的運行就會更流暢并且不怕摩擦損傷門體表面,這樣就為門的高速運轉提供了基礎條件,再配上高速、高頻的華建工業快速硬質門專用開門機,從而實現門體的高速、高頻、平穩運轉;華建工業快速硬質門還配備各種安全保護裝置,具有:運行速度快、安全系數高、運行平穩、噪音小、故障率少,保溫節能的特點。門體采用硬質鋁合金材料,抗風能力達11級,驅動系統采用高頻專用電機,功率:0.75-2.2kw;電壓220V/380V;控制系統采用IP55盒子與各種常用型保護裝置兼容,運行速度上行0.6~2.0米/秒,下行0.6~2.0米/秒,開、關門速度可通過變頻器根據實際需要調節所需上、下行速度。
快速硬質門結構示意圖




快速硬質門土建安裝結構尺寸說明
快速硬質門的安裝土建結構要求相對簡單,根據產品各處尺寸及實際安裝工藝方法確定快速硬質門安裝對土建結構尺寸的要求為:門洞兩側寬度空間≥310㎜(但應有安裝控制器的位置)、安裝電機處寬度空間≥390㎜、安裝卷軸處高度空間≥650-1000㎜(實際尺寸根據門洞高度調整)。
快速硬質門部件清單(單樘)及簡述
