TECHNOLOGY CENTER
技術中心
更深入的了解,促使更合理的選擇
TECHNOLOGY CENTER
技術中心
更深入的了解,促使更合理的選擇
華建電動平移門說明
華建工業電動平移門根據現場土建情況的不同可設計為上承重下導向、 下承重上導及上下承重導向的運行結構,通過齒條、皮帶、鏈條或鋼繩等傳動,實現門體水平分析左右平移啟閉;可單扇平移、雙扇平移、多扇平移。運行平穩壽命長,電動、手動安全可靠,可實現單樘面積上百平米的超大門;適用于門洞縱向方向無太多安裝空間而橫向方向滿足安裝空間的工業用門;門體可采用彩鋼板、鋁板、不銹鋼板及鋼結構組合等材質及方式,門扇上可設計門中門、窗戶,采用開門機驅動實現門體左右直線運動;華建工業平移門兩側和頂面采用三元乙丙橡膠條密封,密封性能優越,停電后可手動開啟或關閉門體;開關門運行速度0.1~0.2米/秒。
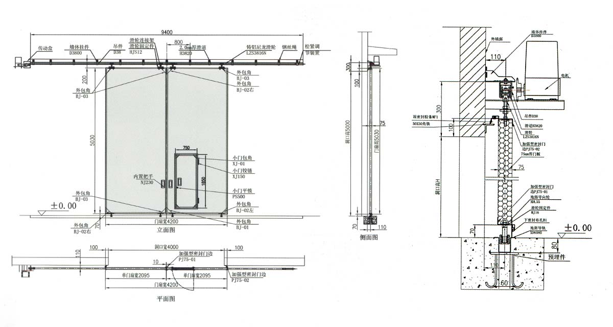
電動平移門結構示意圖(雙扇平移)

電動平移門門土建安裝結構尺寸說明
華建電動平移門安裝土建結構要求按不同的門體尺寸寬度、高度土建要求不同,無法準確確定,常規情況下,門洞兩側寬度空間應≥單扇門寬度、安裝電機處寬度空間應≥單扇門寬度+900㎜、門洞頂部安裝吊軌的高度空間應≥350㎜。
電動平移門主要部件及簡述
1、開門機:
采用電動平移門專用開門機,根據門體的規格和設計方式匹配不同的開門機型號。開門機內部采用蝸輪蝸桿轉動,通過齒輪、齒條、鏈條或鋼繩傳遞于門體,起動力矩大且能實現短時間超載運行,遠行噪音低,震動小;可配接遙控器,儲備電源等裝置。具有熱保護功能,安全,可靠;采用油浸式電機設計,整機潤滑性能出眾,耐低高溫差值大;門開關行程限位精準,帶停電手動裝置,讓電動與手動開啟直接轉換自然,并配置電動、手動轉換鑰匙,安全、可靠;配備紅外線、安全囊、門中門開關接口。
2、門體
2.1 門板采用彩鋼板,中間填充聚氨酯或聚苯乙烯材料,門體總厚度可為:40mm、50mm、75mm、100mm、120mm、150mm、200mm、240mm、320mm(根據現場實際情況選型);
2.2 門體四周包邊采用優質鍍鋅板軋制的專用鋼質型材,結構合理,強度高,型號與門體厚度匹配;
2.3 型材上設有與相鄰型材匹配的搭接邊,在門體關閉時使其充分吻合,搭接邊中設有燕尾鍵槽,鍵槽內插入專用的三元乙丙橡膠條(規格型號與門邊相對應);
2.4 包邊框料型材造型簡潔大方,表面經鍍鋅防腐處理,配合專用的五金配件、使門體具有堅固耐用、氣密性、保溫性及隔音性能強等特點;
2.5 門體轉角處設計包角角碼,采用專用模具沖壓成型, 加強角部強度,美觀大方,兩側及頂部密封采用三元乙丙橡膠密封,下密封采用聚酯纖維布扎(不會像膠條那樣擦黑地面)。
3、限位裝置:
門體中間對口位置底部配有地面限位器,限位器由專用模具沖壓成型,結構牢固方便耐用。兩扇門體的對口器可實現門與地面限位器固定,并能強制使兩扇門保持在同一平面;滑道內設有限位器,當門扇推拉到設定的部位,將門扇滑輪限位,進而限定門扇位置,電機也設計有精確限位控制,從而使門體限位既準確又牢固。
4、承重方式:
根據現場具體情況設計合理的承重方式,如:上承重下導向、 下承重上導及上下承重導向等的運行結構。
5、五金件:
華建電動平移門五金配件包含有:密封門邊、下導軌、上導軌、下膠條、中膠條、滑輪、滑輪固定件、導向輪、導向輪支架、連接軸、內置把手、限位器、對口銷、外包角、外包角襯板、電動傳動組件、調節板、電機線及行程開關線等等。